Casa en venda de 170 m2 a Sant Celoni, Barcelona

Sant Celoni
170 m²
3 hab.
3 Banys
463.000 €

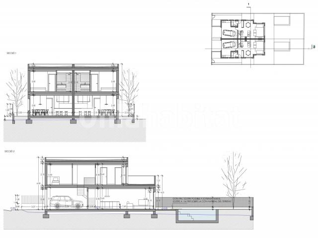
SANT CELONI/SOT GRANOTES. Casa pareada de obra nueva en construcción en la zona del Sot de les Granotes, en Sant Celoni. Situada en un entorno tranquilo y rodeado de naturaleza, a pocos minutos del centro y de la estación de tren, esta vivienda de diseño moderno ofrece un amplio salón-comedor con cocina abierta y salida a un jardín privado de 152 m , tres habitaciones dobles una de ellas tipo suite con terraza y tres baños completos. Dispone de piscina privada de 5 x 2,5 metros, gran garaje con posibilidad de habilitar una habitación adicional y acabados de calidad: calefacción con bomba de calor A.A., aire acondicionado por conductos, sistema de aerotermia, preinstalación de placas solares, carpintería de aluminio con doble acristalamiento y persianas motorizadas. Una oportunidad única para estrenar casa en una zona privilegiada, con entrega prevista para julio de 2026. Contáctanos para más información, planos o visitas a la obra.

Ref. SC1924 - Preu: 463.000 €


Distribucion
Any construcció: 2025
Calefacció: Si
Vistes: Si

Características generales
N º de banys: 3
Nombre de dormitoris: 3
Aparcament: Si
Dormitoris dobles: 3

Otros Equipamientos
Estat de conservació: Nueva
Prop farmàcia: Si
Prop supermercat: Si
Prop restaurants: Si
Tren: Si
Prop centres esportius: Si
Fotos De L'immoble

Sant Celoni

Anuncis similars

Unifamiliar adossada, 165.00 m2
Sant Celoni
165.00 m2

435.000 €

Altres, 179.00 m2
Sant Celoni
179.00 m2

172.000 €

Altres, 168.00 m2
Sant Celoni
168.00 m2

145.000 €

HABITATGES PER PROVíNCIES:


Lorem ipsum dolor sit amet, consectetur adipiscing elit. Quisque turpis libero, eleifend eu faucibus porta, congue sed ligula. Sed lacinia fringilla augue, eget iaculis urna ullamcorper sit amet. Donec laoreet leo faucibus tempor vestibulum. Nullam purus leo, rhoncus ut nunc et, posuere ornare lacus. Mauris eleifend id est vel lacinia.

SEGUEIX-NOS A


Ohlahabitat
  • Gran Vía Corts Catalanes, 622 Pral 1ª
  • Barcelona - 08007
  • Tel: 933 17 54 62
  • info@ohlahabitat.es